VAULT WAREHOUSES

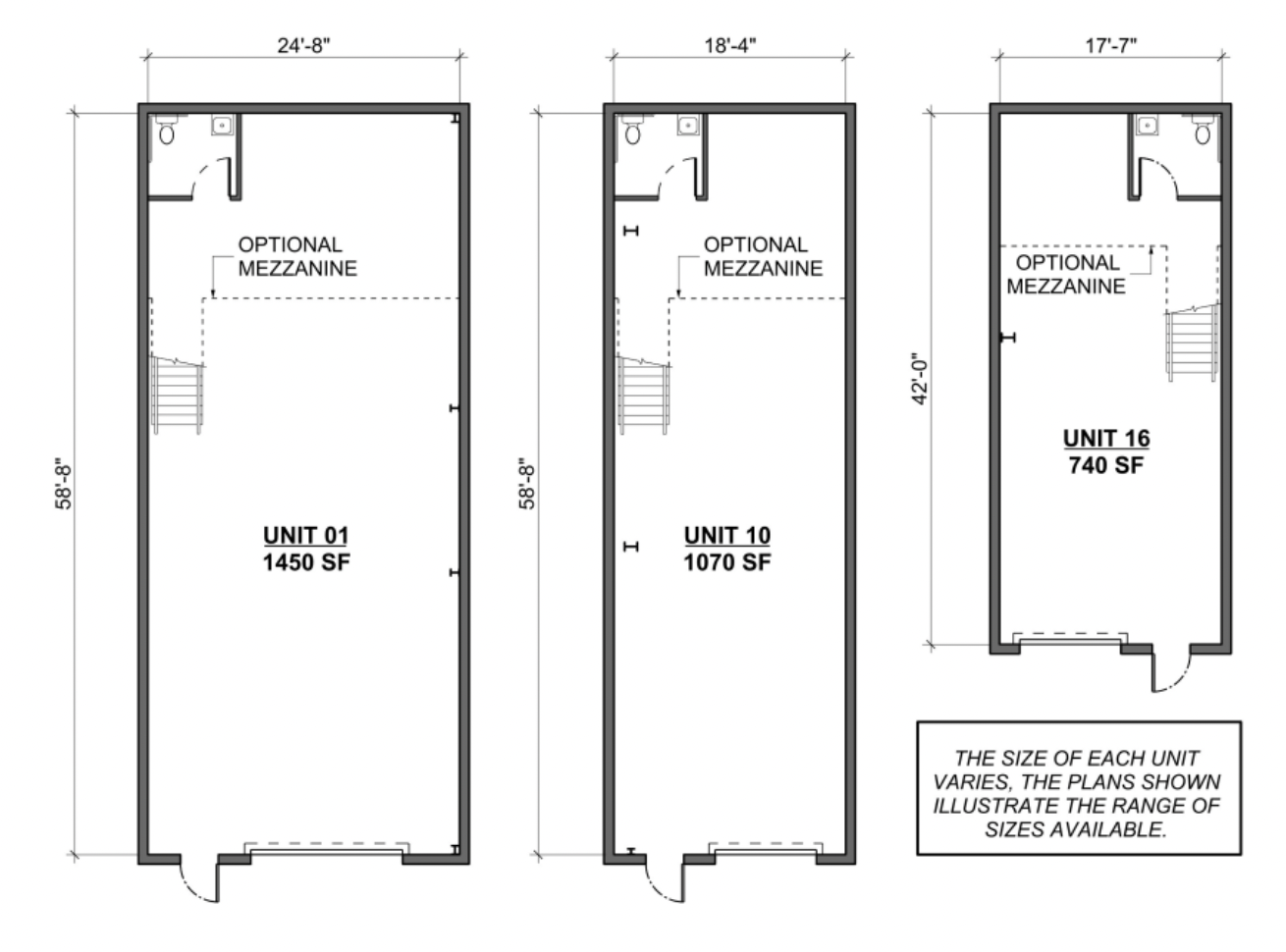
note: square footage does not include mezzanines. a mezzanine can be added to the buyers required size at an additional cost.

 

Get in touch.

It all begins with an idea. Maybe you want to launch a business. Maybe you want to turn a hobby into something more. Or maybe you have a creative project to share with the world. Whatever it is, the way you tell your story online can make all the difference.