PARK PLACE

carrollton georgia

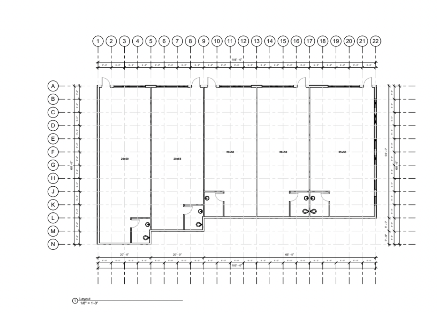
Discover a new level of convenience and ownership in Carrollton with this limited collection of just five private warehouse condominiums. Designed for small businesses, hobbyists, and vehicle enthusiasts, each unit offers secure, flexible space you can customize to fit your needs—whether you’re storing inventory, protecting valuable vehicles, or creating room to grow. With only a handful available, this is a rare opportunity to own a versatile, long-term solution right in the heart of Carrollton at 100 Park Place Way.

100 Park Place Way | Carrollton

  • This Carrollton development includes a limited release of only 5 units, making ownership an exclusive opportunity.

  • Units are ideal for small business storage, inventory management, workshop space, vehicle storage, hobby use, or creating a personal workspace. As the owner, you have the freedom to finish out the interior to suit your needs.

  • Absolutely. Owners are free to add features such as mezzanine lofts, offices, shelving, lighting, or specialty storage—so long as improvements comply with building guidelines. Each unit is designed with insulation and climate-control capability to protect vehicles, equipment, and stored goods year-round.

  • Ownership lets you build equity instead of paying monthly lease premiums. You also gain long-term stability, the freedom to customize, and the potential for future appreciation.

SCHEDULE A PRIVATE TOUR